池袋から秋葉原・銀座に特化した貸事務所・貸店舗専門の不動産。物件紹介から事業コンサルまでサポートします!

株式会社エンジンテラス

日拓高田馬場第2ビル

賃料 : ¥2,100,483 面積 : 300.6m2 築年月 : 1991/01
住所 : 新宿区高田馬場3丁目12-6 交通 :山手線 高田馬場より 徒歩4分 敷金(保証金) :12ヶ月(0ヶ月)
礼金 :1ヶ月 償却 :20% 管理費 :¥315,073

  • 間取
  • 写真

この物件のお勧めPOINT!!

【貸店舗 ダンススタジオ 美容室 飲食 地下 高田馬場】
■早稲田通り沿い■1F入口に看板設置可
[物件詳細]
○山手線【高田馬場駅】徒歩4分、早稲田通り沿いの立地
○ダンススタジオ、クリニック、物販店、飲食店向き
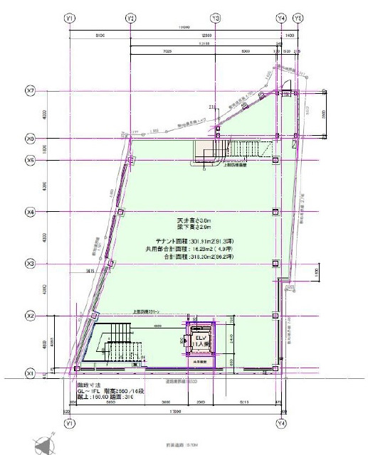
○天井高:3,800mm 梁下:2,900mm
○1F共用部に看板設置可
○内装スケルトン

物件番号 19495
交通 山手線 高田馬場まで 徒歩4分
東西線 高田馬場まで 徒歩4分
バス停最寄施設  
向き   階/階建 B1階〜3階迄/3階建
保証金 0ヶ月 敷引 20%
契約期間 定期借家(相談) 取引態様 仲介
現況 使用中 引渡し時期 令和08年11月上旬
仲介手数料 仲介手数料が賃料の1ヶ月(税込)かかります。 消費税 賃料・共益費は税込です。
更新   更新料  
間取詳細   火災保険
特色 駅至近、24時間使用可、大通り面、スケルトン、地下物件●天井高:3,800mm 梁下:2,900mm、飲食可、保証会社利用必須、軽飲食可

※掲載されている物件データが現状と異なる場合は現状を優先します

地図
位置情報に関するご注意:現在位置情報は精査中の為、正確ではない場合があります。あくまで参考程度の情報となります。
print this page