カブト上池袋ビル
| 賃料 : ¥418,000 | 面積 : 110.05m2 | 築年月 : 1993/07 |
| 住所 : 豊島区上池袋4-1-1 | 交通 :東武東上線 北池袋より 徒歩7分 | 敷金(保証金) :0ヶ月(6ヶ月) |
| 礼金 :1ヶ月 | 償却 :1ヶ月 | 管理費 :¥44,000 |
| 賃料 : ¥418,000 | 面積 : 110.05m2 | 築年月 : 1993/07 |
| 住所 : 豊島区上池袋4-1-1 | 交通 :東武東上線 北池袋より 徒歩7分 | 敷金(保証金) :0ヶ月(6ヶ月) |
| 礼金 :1ヶ月 | 償却 :1ヶ月 | 管理費 :¥44,000 |
【貸店舗 貸事務所 レンタルオフィス 池袋 賃貸】
■明治通り沿い角地■窓面看板広告可
[物件詳細]
○東武東上線【北池袋駅】徒歩7分、JR【池袋駅】徒歩圏、明治通り沿い角地に立地
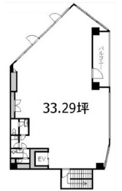
○ワンフロア独立タイプ
○オフィスの他にクリニック、スクール等のサービス店舗にも最適
○男女別トイレ完備
○店舗利用時は敷金8ヶ月、管理費60,000円/月(税別)
| 物件番号 | 19372 | ||
|---|---|---|---|
| 交通 | 東武東上線 北池袋まで 徒歩7分 山手線 池袋まで 徒歩18分 山手線 大塚まで 徒歩13分 |
バス停最寄施設 | |
| 向き | 階/階建 | 7階/12階建 | |
| 保証金 | 6ヶ月 | 敷引 | 1ヶ月 |
| 契約期間 | 定期借家2年 | 取引態様 | 仲介 |
| 現況 | 使用中 | 引渡し時期 | 令和08年08月上旬 | 仲介手数料 | 仲介手数料が賃料の1ヶ月(税込)かかります。 | 消費税 | 賃料・共益費は税込です。 |
| 更新 | 更新料 | 再契約料:新賃料1ヶ月 | |
| 間取詳細 | 火災保険 | 要加入 | |
| 特色 | 男女別トイレ、ミニキッチン、エアコン、エレベータ、2F以上、飲食不可、大通り面、保証会社利用必須、2年未満の解約時:違約金1か月あり、袖看板費用20,000円/月(税別)●店舗利用時は保証金8ヶ月、管理費60,000円/月(税別) | ||
※掲載されている物件データが現状と異なる場合は現状を優先します
地図
|
|
位置情報に関するご注意:現在位置情報は精査中の為、正確ではない場合があります。あくまで参考程度の情報となります。