YSビル
| 賃料 : ¥167,200 | 面積 : 49.27m2 | 築年月 : 1991/01 |
| 住所 : 豊島区池袋3丁目26-15 | 交通 :山手線 池袋より 徒歩12分 | 敷金(保証金) :4ヶ月(0万円) |
| 礼金 :0ヶ月 | 償却 :0% | 管理費 :- |
| 賃料 : ¥167,200 | 面積 : 49.27m2 | 築年月 : 1991/01 |
| 住所 : 豊島区池袋3丁目26-15 | 交通 :山手線 池袋より 徒歩12分 | 敷金(保証金) :4ヶ月(0万円) |
| 礼金 :0ヶ月 | 償却 :0% | 管理費 :- |
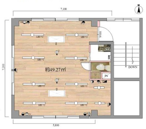
【貸事務所 レンタルオフィス 池袋 賃貸】
■初期費用抑え目■ワンフロア独立タイプ
[物件詳細]
○山手線【池袋駅」】徒歩12分、閑静な立地
○使いやすいワンフロア独立タイプ
○礼金なし、初期費用抑え目で新規独立の方向け
○機械警備完備
| 物件番号 | 19217 | ||
|---|---|---|---|
| 交通 | 山手線 池袋まで 徒歩12分 有楽町線 池袋まで 徒歩12分 副都心線 池袋まで 徒歩6分 |
バス停最寄施設 | |
| 向き | 階/階建 | 3階/3階建 | |
| 保証金 | 0万円 | 敷引 | 0% |
| 契約期間 | 2年 | 取引態様 | 仲介 |
| 現況 | 空室 | 引渡し時期 | 即時 | 仲介手数料 | 仲介手数料が賃料の1ヶ月(税込)かかります。 | 消費税 | 賃料・共益費は税込です。 |
| 更新 | 可 | 更新料 | 新賃料1ヶ月 |
| 間取詳細 | 火災保険 | ||
| 特色 | トイレ、ミニキッチン、飲食不可、エアコン、2F以上、オートロック、EV無し、機械警備、保証会社利用必須 | ||
※掲載されている物件データが現状と異なる場合は現状を優先します
地図
|
|
位置情報に関するご注意:現在位置情報は精査中の為、正確ではない場合があります。あくまで参考程度の情報となります。