(仮称)東池袋新築ビル
| 賃料 : ¥319,000 | 面積 : 52.93m2 | 築年月 : 2026/01 |
| 住所 : 豊島区東池袋2丁目13-9 | 交通 :山手線 大塚より 徒歩5分 | 敷金(保証金) :4ヶ月(0ヶ月) |
| 礼金 :1ヶ月 | 償却 :0ヶ月 | 管理費 :¥33,000 |
| 賃料 : ¥319,000 | 面積 : 52.93m2 | 築年月 : 2026/01 |
| 住所 : 豊島区東池袋2丁目13-9 | 交通 :山手線 大塚より 徒歩5分 | 敷金(保証金) :4ヶ月(0ヶ月) |
| 礼金 :1ヶ月 | 償却 :0ヶ月 | 管理費 :¥33,000 |
【貸事務所 レンタルオフィス 池袋 新築 貸店舗 飲食 賃貸】
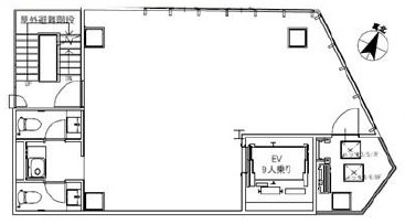
■新築■男女別トイレ完備
[物件詳細]
○山手線【大塚駅】徒歩5分、JR【池袋駅】徒歩20分、新築ビル
○ワンフロア独立タイプ
○男女別トイレ
○オフィスの他に各種サービス店舗相談可
| 物件番号 | 19194 | ||
|---|---|---|---|
| 交通 | 山手線 大塚まで 徒歩5分 山手線 池袋まで 徒歩20分 丸ノ内線 池袋まで 徒歩20分 |
バス停最寄施設 | |
| 向き | 階/階建 | 5階/8階建 | |
| 保証金 | 0ヶ月 | 敷引 | 0ヶ月 |
| 契約期間 | 2年 | 取引態様 | 仲介 |
| 現況 | 未完成 | 引渡し時期 | 令和08年01月下旬 | 仲介手数料 | 仲介手数料が賃料の1ヶ月(税込)かかります。 | 消費税 | 賃料・共益費は税込です。 |
| 更新 | 可 | 更新料 | 新賃料1ヶ月 |
| 間取詳細 | 火災保険 | 要加入 | |
| 特色 | 男女別トイレ、飲食可、軽飲食可、飲食相談、保証会社利用必須、駅至近、エレベータ、2F以上、ミニキッチン、エアコン、24時間使用可 | ||
※掲載されている物件データが現状と異なる場合は現状を優先します
地図
|
|
位置情報に関するご注意:現在位置情報は精査中の為、正確ではない場合があります。あくまで参考程度の情報となります。