金井ビル
| 賃料 : ¥431,200 | 面積 : 92.6m2 | 築年月 : 1973/04 |
| 住所 : 豊島区南池袋2丁目29-10 | 交通 :山手線 池袋より 徒歩5分 | 敷金(保証金) :0ヶ月(6ヶ月) |
| 礼金 :1ヶ月 | 償却 :2ヶ月 | 管理費 :- |
| 賃料 : ¥431,200 | 面積 : 92.6m2 | 築年月 : 1973/04 |
| 住所 : 豊島区南池袋2丁目29-10 | 交通 :山手線 池袋より 徒歩5分 | 敷金(保証金) :0ヶ月(6ヶ月) |
| 礼金 :1ヶ月 | 償却 :2ヶ月 | 管理費 :- |
【貸事務所 レンタルオフィス 池袋 賃貸】
■グリーン大通り沿いの立地■水廻りは共用部にあり
○JR【池袋駅】徒歩5分、グリーン大通り沿いの立地
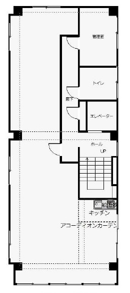
○水廻りは共用部あり
○ワンフロア独立タイプ
| 物件番号 | 6551 | ||
|---|---|---|---|
| 交通 | 山手線 池袋まで 徒歩5分 丸ノ内線 池袋まで 徒歩5分 有楽町線 東池袋まで 徒歩5分 |
バス停最寄施設 | |
| 向き | 階/階建 | 9階/10階建 | |
| 保証金 | 6ヶ月 | 敷引 | 2ヶ月 |
| 契約期間 | 2年 | 取引態様 | 仲介 |
| 現況 | 空室 | 引渡し時期 | 即時 | 仲介手数料 | 仲介手数料が賃料の1ヶ月(税込)かかります。 | 消費税 | 賃料・共益費は税込です。 |
| 更新 | 更新料 | 新賃料1ヶ月 | |
| 間取詳細 | 火災保険 | 有 | |
| 特色 | 大通り面、24時間使用可、2F以上、エレベータ、エアコン、駅至近、トイレ、保証会社利用必須、飲食不可、ミニキッチン | ||
※掲載されている物件データが現状と異なる場合は現状を優先します
地図
|
|
位置情報に関するご注意:現在位置情報は精査中の為、正確ではない場合があります。あくまで参考程度の情報となります。